
Mellieha
OVERVIEW
Welcome to our exclusive property development in the heart of Mellieha – a small block of residences seamlessly blending modern luxury with the timeless charm of this enchanting village. Embrace the unique opportunity to reside in a carefully crafted space, offering a harmonious blend of comfort and cultural richness. Welcome home to a life of serenity and sophistication in this idyllic corner of Mellieha
A new block of 4 apartments that seamlessly blends modern design with serene surroundings. Nestled in the heart of Mellieha.
Starting from Price
€475,000
Location
Mellieha
Completion Date
Q2 2025
FEATURES AND AMENITIES
Interior Finishings
- Internal Walls plastered in gypsum rendering, finished with fina ‘frakass’ and painted in white
- Plumbing, Electrical & Communications
- A choice of 60x60cm gres & rectified Floor tiles laid to perfection (Skirting used with the same material)
- Double glazed aluminum apertures in all internal shafts, yards and facades
- Inspect screens
- Video intercom system
- Waterproofing in all terraces
Common Parts
- Lift
- Stairs in marble or Travertine
- Landing in marble or Travertine
- Staircase railing
- Yard and/or large terrace if any: one one-way lighting point and one rainwater floor drain
- Intercom linked to block the main door with automated lock
- Numbered letterboxes
- Numbered apartment front door
- Drainage and rainwater piping
- Automatic lighting
- Membrane on terraces and on Roof
- Plastering painting of internal shafts
- GR1000 on party walls (apoggi)
- Plastering of facades in Silacato
- Rustproof railings in back balconies (if any)
- Glass Railings for front terraces
- Marble/Travertine window sills
- Block name
- Tiling of balconies, terraces, yards
- Outdoor lighting as required.
AVAILABLE PROPERTIES
Explore the range of properties currently available from Viewpoint in Mellieha
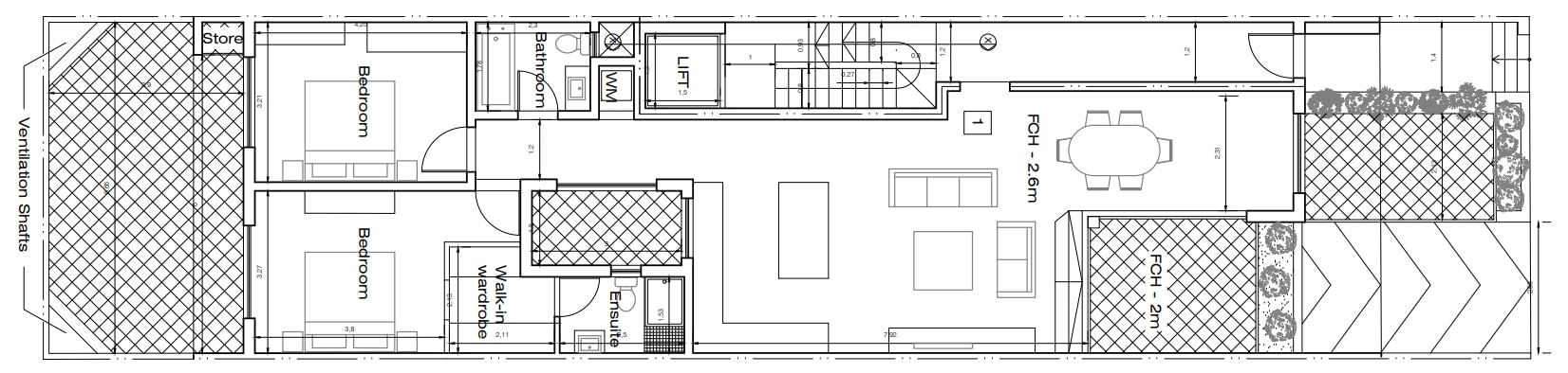
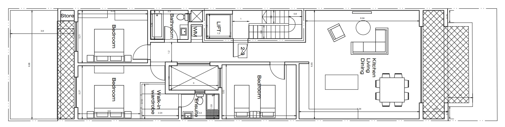
Apartment 1
2bed
|
200sqm
| Apartment Number | Property Type | Floor | Bedrooms | Int. Size | Ext. Size | Price |
|---|---|---|---|---|---|---|
| A1 | Apartment | 1 | 2 | 117.7m2 | 43.8m2 | Sold |
| A2 | Apartment | 2 | 3 | 131.7m2 | 24.1m2 | Sold |
| A3 | Apartment | 3 | 3 | 131.7m2 | 24.1m2 | Sold |
| A4 | Apartment | 4 | 3 | 112.8m2 | 35.3m2 | Sold |





